Itark

AMPLIACIÓN Y REFORMA DE LA CASA CONSISTORIAL EN ERRENTERIA

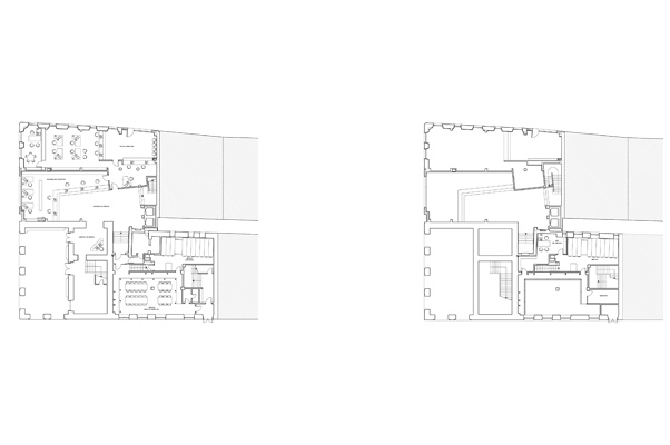
Actuación en dos fases que se realiza con el objetivo de centralizar los servicios de este Ayuntamiento. Una primera fase de ampliación se localiza en los dos solares contiguos al actual edificio municipal y originalmente destinados al uso de vivienda, y una segunda fase de reforma de la edificación existente se realiza contemplando el funcionamiento permanente del establecimiento municipal.

La ordenación interior se estructura en torno a un gran patio de luces que establece la relación entre el edificio existente y la ampliación. En la edificación existente se sanean los muros de piedra y se recuperan los elementos singulares. En la zona de ampliación el cierre del patio se realiza con un muro cortina continuo. Se evidencia de esta forma la dualidad entre tradición y modernidad, formalizando un espacio vertical con la monumentalidad y representatividad propia de la nueva Casa Consistorial.

  • GANADOR DEL CONCURSO PARA LA REDACCIÓN DEL PROYECTO DE AMPLIACIÓN Y REFORMA DE LA ACTUAL CASA CONSISTORIAL DEL AYUNTAMIENTO DE ERRENTERIA.
  • REDACCIÓN DE PROYECTO Y DIRECCIÓN DE OBRA.
  • REDACCIÓN DEL PROYECTO DE AMUEBLAMIENTO Y EQUIPAMIENTO.